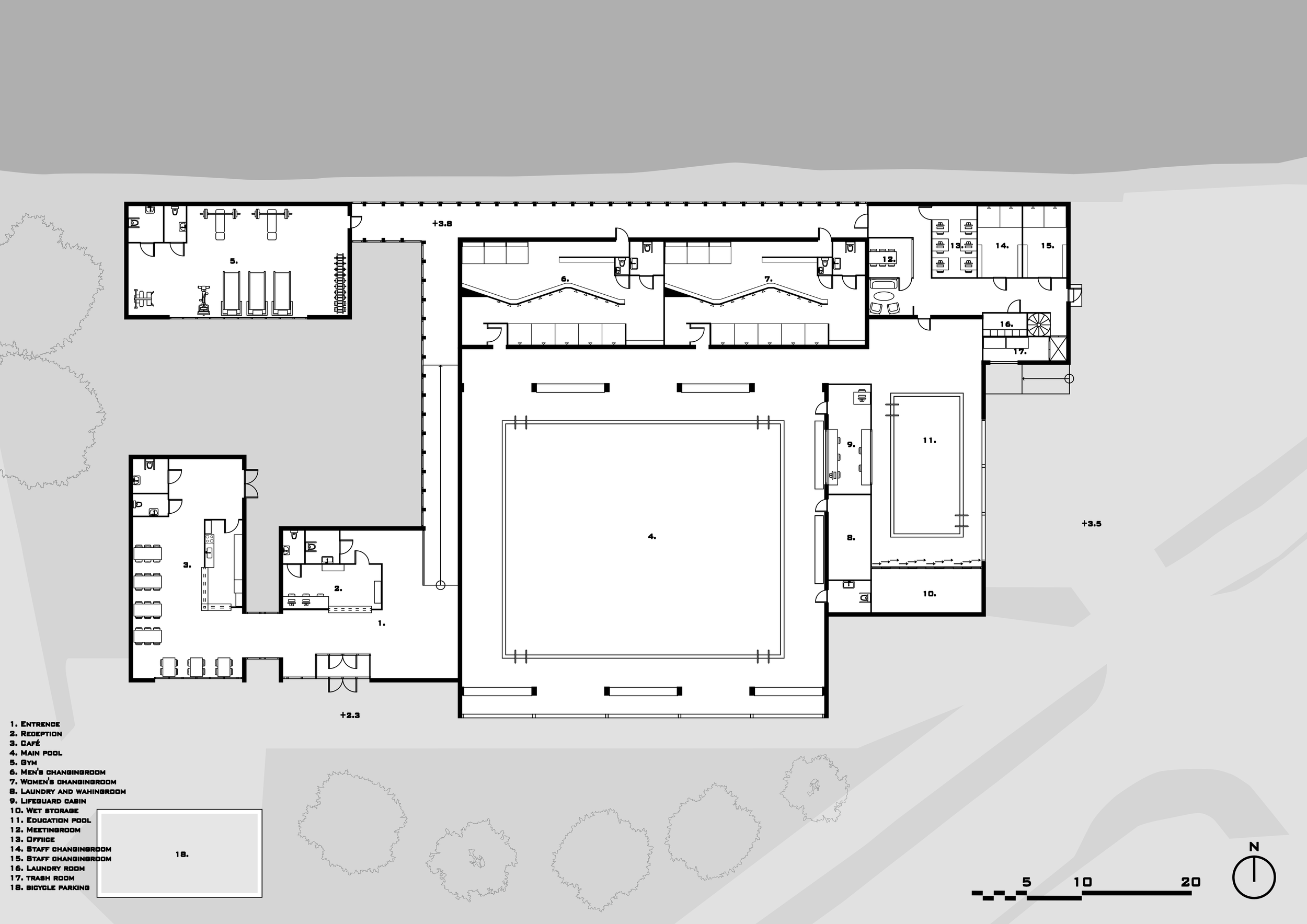
A contemporary neighborhood bathhouse in Torslanda, designed as a welcoming hub for community, health, and everyday life. The project explores structural systems in timber, balancing structure, material, and light to create a warm, open, and accessible space for swimming, learning, and social connection.

Parametric scaffolding roof developed in Grasshopper, optimized for structural performance while minimizing material use.

Next
Next

Portugal Vez River Spa